The Beechfield | Portfolio of Homes | Countrylane Heathwood The Beechfield

CLASSIC COLLECTION

The Beechfield
A
ELEVATION
B
ELEVATION

45′ LUXURY HOMES

The Beechfield

Classic collection

Elevation A - 4,485 sq. ft.
Elevation B - 4,509 sq. ft.

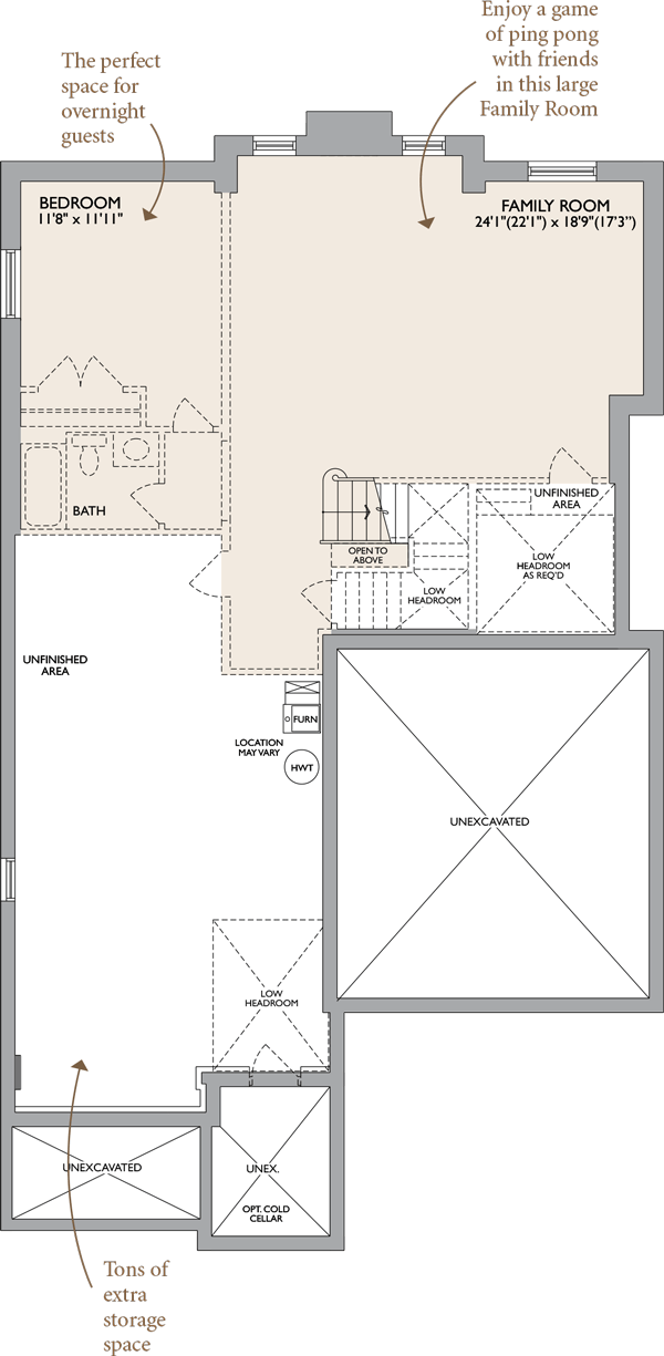
Includes 874 Square Feet of finished Lower Level


Ground Floor

Second Floor

Finished Lower Level

Ground Floor

Second Floor

Finished Lower Level

Actual usable space may vary from stated area. Dimensions, specifications and architectural detailing are subject to changes without notice E. & O.E. All renderings and landscape features are artist’s concept.

MAKING A DIFFERENCE IN OUR COMMUNITY

The Country Lane Community will be making a donation to The Mikey Network on behalf of the residents that buy at Country Lane. Together we can save a life, make a lasting difference and help the beat go on within our community.

LEARN MORE