The Cedarvale | Portfolio of Homes | Countrylane Heathwood The Cedarvale

CLASSIC COLLECTION

The Cedarvale
A
ELEVATION
B
ELEVATION

45′ LUXURY HOMES

The Cedarvale

Classic collection

Elevation A - 4,447 sq. ft.
Elevation B - 4,478 sq. ft.

Includes 905 Square Feet of finished Lower Level


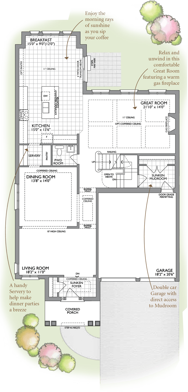
Ground Floor

Second Floor

Finished Lower Level

Ground Floor

Second Floor

Finished Lower Level

Actual usable space may vary from stated area. Dimensions, specifications and architectural detailing are subject to changes without notice E. & O.E. All renderings and landscape features are artist’s concept.

MAKING A DIFFERENCE IN OUR COMMUNITY

The Country Lane Community will be making a donation to The Mikey Network on behalf of the residents that buy at Country Lane. Together we can save a life, make a lasting difference and help the beat go on within our community.

LEARN MORE