The Pinehurst | Portfolio of Homes | Countrylane Heathwood The Pinehurst

CLASSIC COLLECTION

The Pinehurst
A
ELEVATION
B
ELEVATION

45′ LUXURY HOMES

The Pinehurst

Classic collection

Elevation A - 3,821 sq. ft.
Elevation B - 3,808 sq. ft.

Includes 698 Square Feet of finished Lower Level


Ground Floor

Second Floor

Optional Second Floor

Optional Loft

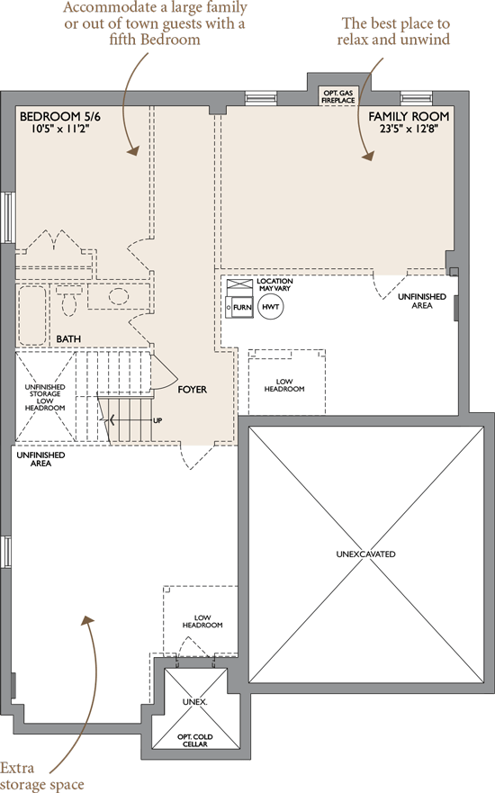
Finished Lower Level

Ground Floor

Second Floor

Optional Second Floor

Optional Loft

Finished Lower Level

Actual usable space may vary from stated area. Dimensions, specifications and architectural detailing are subject to changes without notice E. & O.E. All renderings and landscape features are artist’s concept.

MAKING A DIFFERENCE IN OUR COMMUNITY

The Country Lane Community will be making a donation to The Mikey Network on behalf of the residents that buy at Country Lane. Together we can save a life, make a lasting difference and help the beat go on within our community.

LEARN MORE